Some of our most meaningful work happens before a single nail is driven.
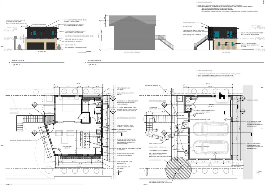
This Accessory Dwelling Unit (ADU) project went through full design development, permitting, and city approval — including multiple variances — before financing prevented the build from moving forward. The design work stands on its own.
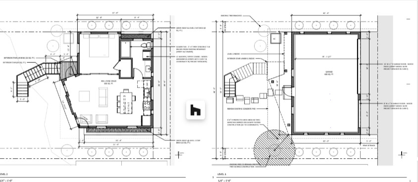
The concept: a single-bedroom, single-bathroom unit above a full three-car garage, designed with some of the most thoughtful green systems we've put together. Radiant floor heating, state-of-the-art sustainable materials, and two distinct green roof elements defined the environmental approach. The primary roof — over 600 square feet — was designed to host a native prairie planting, creating habitat and insulation in equal measure. A stepped-back first story featured additional green roof sections visible directly from the unit's windows, turning what's usually dead space into living focal points.
The open-concept kitchen and living area was designed to feel expansive despite the footprint, with the rooftop prairie as a quiet backdrop to daily life.
This one is waiting for the right moment. We'd build it tomorrow.
